Трійник редукційний 40x32x40 WT Wavin PPR 3051022
Рекомендовані продукти
ТЕХНІЧНІ ДАНІ
Розміри та вага товарної одиниці: 1 шт
Трійник редукційний 40x32x40 WT Wavin PPR 3051022
Триходовий редуктор для водопровідних та опалювальних систем
Цей редукторний трійник Wavin PPR 40x32x40 WT є незамінним елементом інсталяційної системи, що дозволяє з'єднувати труби різних діаметрів. Він ідеально підходить для створення розгалужень в системах водопостачання, центрального опалення та гарячого водопостачання. Виготовлений з високоякісного поліпропілену (PP-R), забезпечує довговічність та надійність з'єднань.
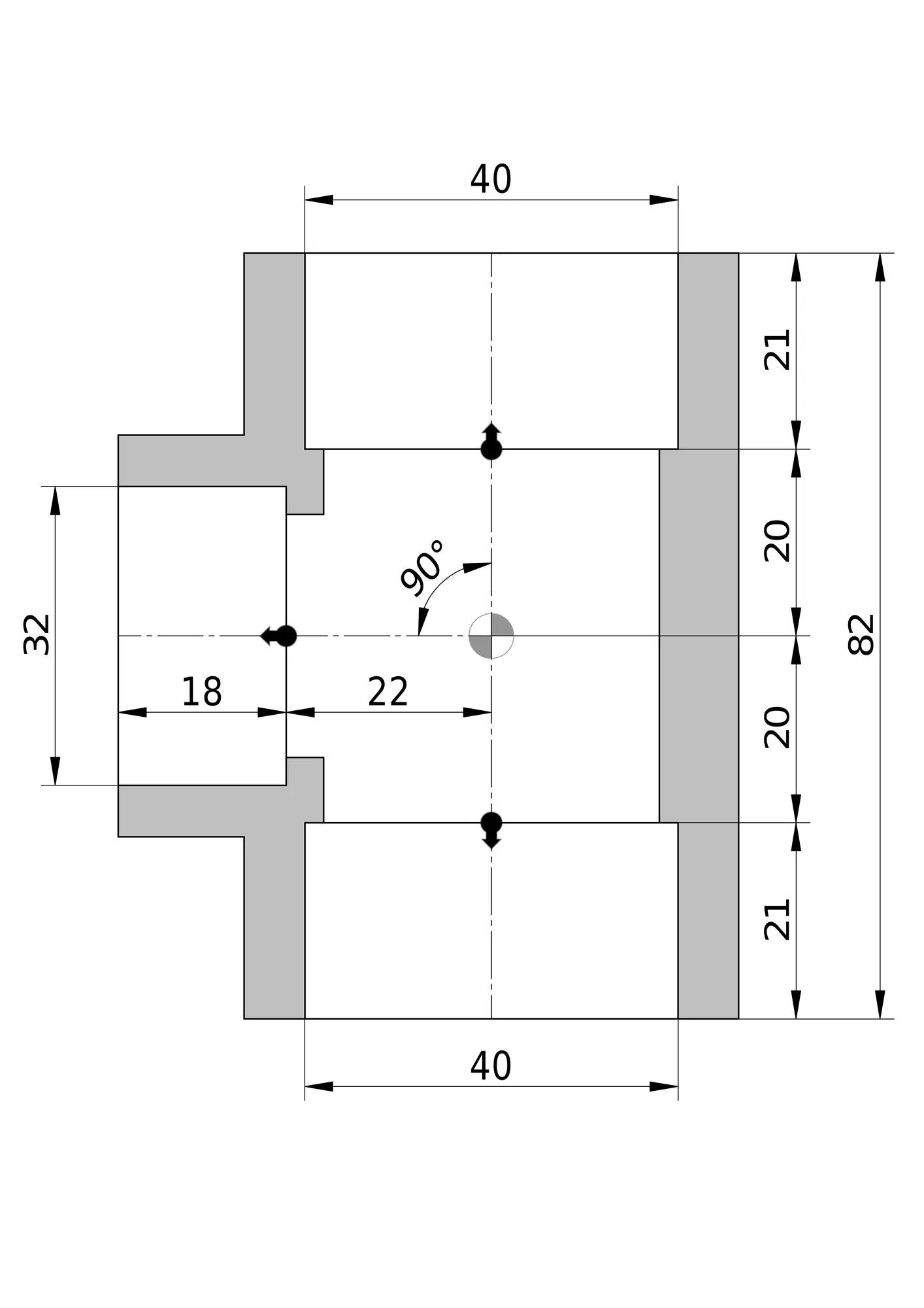
Трійник призначений для з'єднання труб діаметром 40 мм, 32 мм і 40 мм, що дозволяє гнучко адаптувати інсталяцію до індивідуальних потреб. Завдяки зварному з'єднанню, гарантує герметичність і стійкість до корозії. Конструкція трійника під кутом 90° полегшує прокладання інсталяції в тісних просторах.
Особливості та переваги
- Редукція діаметра: дозволяє з'єднувати труби різних діаметрів без необхідності використання додаткових адаптерів.
- Матеріал PP-R: забезпечує високу стійкість до температури (до 75°C) і тиску (до 20 бар), гарантуючи довготривалу експлуатацію.
- Зварне з'єднання: створює герметичне та міцне з'єднання, мінімізуючи ризик витоків.
- Кут 90°: полегшує прокладання інсталяції в обмеженому просторі, забезпечуючи зручність монтажу.
- SDR 6: коефіцієнт розмірів SDR 6 забезпечує відповідну механічну міцність і стійкість до внутрішнього тиску.
- Ущільнювачі в комплекті: готовий до монтажу – не потребує додаткових ущільнюючих елементів.
- Універсальність застосування: підходить для інсталяцій водопостачання, центрального опалення та гарячого водопостачання.
Конструкція та монтаж
Триходовий редуктор Wavin PPR виготовлений з поліпропілену (PP-R), що забезпечує його легкість і простоту обробки. Монтаж відбувається шляхом зварювання за допомогою спеціалізованого зварювального апарату для PP-R, що гарантує міцне та герметичне з'єднання. Необхідно пам'ятати про відповідну підготовку поверхні труб перед зварюванням – очищення та знежирення. Робочі довжини з'єднань становлять відповідно 20 мм для приєднань DN40 та 22 мм для приєднання DN32, що полегшує точний монтаж. Товщина стінок труб становить 6,5 мм для DN40 та 5,5 мм для DN32, що впливає на міцність всієї конструкції.
СЕРТИФІКАТИ, СХВАЛЕННЯ, БЕЗПЕКА, ВІДПОВІДНІСТЬ ТА ПОПЕРЕДЖЕННЯ
Додатки

